HISTÒRIA, REGLAMENT I TÈCNICA
1. Origen i evolució.
- El Floorball té el seu origen als EEUU durant la meitat del segle XIX. Aquest esport es deu a un intent d’adoptar les regles de l’hoquei sobre gel als més joves. Per a això es va haver de modificar el material perquè fos menys lesiu. El primer campionat de Floorball es va dur a terme a Michigan en 1962. Durant aquests anys, aquesta modalitat esportiva es va anar separant de l’hoquei gel per anar definint-se i expandint-se paulatinament en diferents països del món. En 1981 es constitueix la Federació Nacional Sueca, i en 1986 es funda la federació Internacional de Floorball en Huskvarna (Suècia). En l’actualitat està composada de 19 països. En Espanya es va difonent el joc a través de fullets informatius en els col·legis com a esport alternatiu. En 1998 es crea l’Associació Espanyola de Floorball.

2. Desenvolupament del joc
- S’enfronten dos equips de 6 jugadors (5 jugadors de camp i un porter), que intenten introduir la bola en la porteria de l’altre equip el major nombre de vegades durant els tres temps de 20 minuts que es disposa, amb un descans de 10 minuts entre cada temps o període (pot variar depèn de la categoria). Cadascun dels jugadors disposarà d’un estic per al desenvolupament del mateix.
- El partit comença amb un servei neutral al mig del camp, amb un jugador de cada equip. Els altres jugadors estaran a 3 metres de distància. Aquest mateix servei és vàlid per a la segona i tercera part, així com cada vegada que un equip rebi un gol. Els jugadors podran utilitzar els peus i el pit per dirigir la bola cap a l’estic, així com utilitzar tots dos costats de l’estic per colpejar-la. La utilització de la vora que envolta el camp com a recurs del joc està permès, així com recolzar-se amb l’esquena, de forma amistosa, amb un jugador de l’altre equip o furtar-li la bola.
3. Reglament bàsic
-
En el Floorbal, igual que en tots els esports d’estic i bola, existeixen una sèrie d’accions permeses i prohibides. Aquestes són les següents:

A més, heu de tenir en compte les següents NORMES REGLAMENTÀRIES:
- Servei inicial o stroke in: per donar començament al partit, l’àrbitre deixa caure la bola entre dos jugadors. La resta, situats a no menys de 3 metres.

-
Servei de falta o stroke free: s’ha d’efectuar en el lloc on ha ocorregut la falta, no podent dirigir la bola directament a gol, els adversaris no poden trobar-se a menys de 3 metres.

- El porter no pot tenir la pilota en les seves mans més de 3 segons.
- Penalti o penalti stroke: el penal en floorball és una situació d’1 contra 1; s’inicia al centre del camp des d’on el jugador que llança el penal s’aproparà a la porteria i el porter espera en la seva línia de gol.
- Gol: un gol és marcat quan tota la bola creua la línia de gol. Ha de ser per mitjà de l’estic sense impulsar amb el cos o peu.
- Canvis de jugadors: el nombre de substitucions és il·limitat i es pot realitzar a qualsevol moment. Les zones de substitució estan situades en les bandes laterals a 5 m. a cada costat de la línia central. Es poden realitzar tantes substitucions com es desitgin, de manera que puguin ser substituïts diversos jugadors alhora, i que un jugador pugui ser substituït diverses vegades.
- Pròrroga del partit: si un partit acaba en empat i ha d’haver-hi un guanyador, es perllongarà fins a un màxim de 15 minuts, després del temps real reglamentari de partit; en cas que persisteixi l’empat, s’efectuaran, des de la línia de penal, 5 llançaments cada equip.
- Suspensions i penalitzacions: els jugadors/es poden ser sancionats amb expulsions temporals o definitives per accions o comportaments antiesportius, realitzar accions que comportin perill o per la seva reincidència en les faltes. La durada de les expulsions temporals va des dels 2 als 10 minuts.
- De 2 minuts quan:
- Copeja, obstrueix o dóna una puntada al contrari sense la possibilitat d’aconseguir la bola.
- Comet joc perillós en l’ús de l’estic.
- Agafa a un contrari, l’empeny contra la banda o li fa ensopegar. – Obstrueix a un contrari sense bola.
- Juga la bola des d’assegut o tombat, o intencionadament amb la mà, braç o el cap.
- Juga sense l’estic.
- Es produeix una substitució incorrecta.
- Es perd temps o es retarda el servei.
- Un jugador o membre del cos tècnic protesten la decisió arbitral.
- De 5 minuts quan:
- Llança el seu estic per intentar desviar o jugar la bola.
- Enganxa intencionadament amb l’estic a un altre jugador.
- Comet repetides accions sancionades amb expulsió de 2 minuts.
- El jugador es nega a obeir als àrbitres.
- El jugador expulsat s’anirà a la banqueta de sanció fins que acabi el temps d’expulsió i no podrà ser substituït per un altre jugador.
- De 2 minuts quan:
NORMES ADAPTADES A L’INSTITUT
- El porter PORTARÀ STICK, no pot ajupir-se, agenollar-se ni estirar-se a terra. Ha d’estar dret. Només podrà tocar la pilota amb les mans si aquesta està botant (no toca a terra).
- Ni els jugadors atacants ni els defensors poden estat parats dins la zona del porter. Hi poden estar però solament de “pas”.
Diferències significatives entre el Floorball i l’hoquei sala:

4. Instal·lacions i material necessari
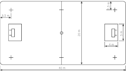
- Terreny de joc: camp de 40 x 20 metres, amb les cantonades corbes. Existeix una línia central que divideix el camp en dues meitats i un punt central on es realitza el servei inicial abans de cada període. Delimitant el camp, hi ha unes bandes de 50 centímetres d’altura.

- Estic: és de plàstic lleuger, dur i fort, amb un pes aproximat de 380 grams. La pala de l’estic és plana pels dos costats, podent colpejar la bola amb els dos costats.
- La pilota: és rodona rígida, buida per dins i de plàstic.

- Porteries: D’1,60 metres de llarg i d’1,15 metres d’alt, vorejades per dues àrees: la del porter (2,1 x 1 m) i marcada a 3,5 metres de les tanques del fons i l’altra que dista amb el fons (2,85 metres) i que té d’ample 5 m i de llarg 4 m.
5. Recursos tècnics bàsics
- Com s’agafa l’estic: la mà no dominant per l’extrem de l’estic, i la dominant a uns 20 centímetres de l’altra (cap a la meitat de l’estic). Les cames estan semiflexionades per no lesionar-nos l’esquena.

- Desplaçaments: per desplaçar-nos amb l’estic i la bola, cal fer-ho amb el major control possible i utilitzant tots dos costats de l’estic.
- Parada de la bola: quan reps la bola, per controlar-la, és millor amortiguar-la acompanyant-la fins a detenir-la, que deixar quiet l’estic i parar-la en sec.
- Passades i recepcions: és important poder evitar el bot de la bola a l’hora de rebre-la. Per a això, cal col·locar l’estic formant un angle de 90º o menys amb el terra. Per realitzar la passada, cal empènyer la bola, no colpejar-la.
- Finta o regat: és l’acció de depassar al nostre oponent quan estem en possessió de la bola. L’acció que exerceix el nostre oponent es denomina marcatge. Per poder realitzar una bona finta hem de realitzar un canvi de direcció i de ritme així com tenir un bon domini de la bola. És important que una vegada que aconseguim depassar a l’oponent acabem amb un bon control de la bola per poder realitzar la següent acció.
- Llançaments: es realitza igual que la passada, però lògicament amb major impuls, amb la qual cosa hem d’apropar la bola una mica més al peu de darrere i exercir una forta acció amb el braç dret (per a destres) o esquerre (per a esquerrans).
- Marcatge: és l’acció que fa un jugador sense possessió de la bola apropant-se al seu oponent amb l’objectiu d’impedir que aquest la rebi o realitzi alguna jugada amb el seu equip.
- Desmarcatge: és l’acció que fa un jugador sense possessió de la bola separant-se del seu oponent que l’està marcant, per poder intervenir en una jugada amb major facilitat.
- Push: consisteix a empènyer la bola, traient-la des de darrere per poder accelerar-la de manera convenient. L’estic ha d’acabar apuntant al lloc de destinació (la porteria, un company, etc.), sense superar l’alçada del genoll i amb la punta de la pala mirant cap amunt. Per passar amb més precisió, és millor empènyer la bola que colpejar-la com en el golf.

- Slap: similar al push però amb la diferència que previ al colpeig, s’arrastra l’estic per terra.

A continuació, teniu alguns videos de partits oficials de Floorball i habilitats d’aquest esport.