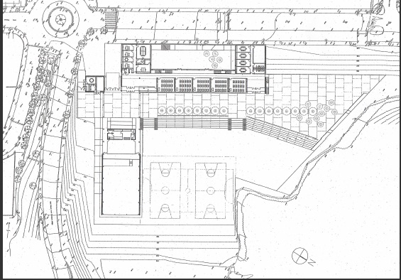
El nostre institut disposa de 15.192,22 m2 més els barracons, d’aquests, 3.355,05 m2 estan edificats. Cal afegir la pista, que ocupa 800 m2 (40x20m). S’espera que en el proper curs entrin quatre noves líneas de 1r d’ESO.
Actualment el centre disposa de 29 aules, contant l’edifici i els barracons i d’aquestes, 21 estan situades a l’edifici i 8 als barracons, d’aquestes 8, 2 fan funció de classe, mentre que les altres s’utilitzen per optatives o desdoblaments. De les 21 total del edifici, 13 fan funció de classe, i les altres 8 aules tenen funcions generalitzades (audiovisuals, informàtica, tutoria, biblioteca, desdoblaments, tecnologia, el laboratori…).
Moltes de les classes s’utilitzen per diverses funcions: per dur a terme optatives (no hi ha aules especifiques per a cada una de les optatives, com música o plàstica).
Pel poble hi ha rumors que a l’ institut no hi ha suficient espai per els nous alumnes i que per tant s’haurien d’instal·lar a algunes de les escoles properes.
Realment s’espera que les 4 pròximes líneas de 1r d’ ESO que vindran el curs següent s’instal·laran en alguna de les aules que en aquest curs hi ha els alumnes de batxillerat, i ells aniran als barracons, que actualment encara hi ha alguna aula lliure, per tant els rumors són falsos.
Parlant amb la direcció del centre ens hem informat sobre l’historia de l’edifici. El mateix dia de la inauguració, en l’acte ja es va dir que es necessitaria més espai, perquè volien instal·lar-hi un batxillerat a part de la secundaria. Un cop el centre va estar complert, hi van afegir els barracons, per tot hi així l’espai del centre segueix sent insuficient, perquè es necessiten espais específics. El projecte d’ampliació de l’edifici ja fa uns anys que esta creat i en la llista d’espera de la Generalitat per dur-lo a terme.
Redactors: Ènia Mangas, Hector Garcia i Laia Navarro
Editors:Ènia Mangas, Hector Garcia i Laia Navarro.
