ESPAIS VERDS A L’ESCOLA
A l’escola hi ha tres espais verds, un destinat a l’hort, un altre destinat a les plantes aromàtiques i medicinals, i un tercer destinat a jardí segons el planell següent.
S’han fet 3 planells, un per a cada comunitat, el de petits, el de mitjans i el de grans.
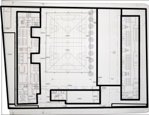
Plànol de l’escola on es pot identificar la pista de joc, el gimnàs a sota, a la dreta, la zona d’esbarjo de la comunitat de petits i l’edifici que correspon i a l’esquerra l’edifici de la comunitat de mitjans i grans.
Darrera l’edifici de primària hi podem situar l’hort, darrera l’edifici d’infantil, l’espai de plantes aromàtiques i medicinals i finalment dues petites zones de jardí situades davant de les entrades a cada edifici.
Els plànols cada vegada son més propers a la realitat dels realitzats pels arquitectes, hi afegim cada vegada un grau més de dificultat.
HORT
L’hort de l’escola està composat de 9 parcel·les, un hivernacle, un espai per a fer compost i un espai per menjador.
L’hort mesura aproximadament 45 metres de llargada, 3,70 metres d’amplada el lloc més estret i fins a 6,70 metres el lloc més ample. Un total aproximat de 284 m².
Cada parcel·la mesura 3,60 metres d’amplada per la llargada corresponent segons la seva ubicació. la supefície de les parcel·les oscil·la entre 13,32 m2 la més petita i 23,40 m2 la més gran.
Cada nivell haurà de decidir quin tipus d’hort vol fer, en solcs, en bancals elevats o parades en crestall. En aquest últim cas, s’hauran de compartir dues parcel·les per poder fer la rotació de cultius.
La primera imatge correspon al tipus d’hort en solcs, la segona seria el de bancals elevats i la tercera a les parades en crestall.
Per tenir més clars els conceptes ens podem mirar la següent presentació sobre els horts escolars ecològics:







mola els bancals i guayarem endavant companys!!!
Manal, no es tracta de guanyar sinó fer un debat i arribar a ACORDS, veient els avantatges i inconvenients de cada tipus d’hort.
De totes maneres, ENDAVANT!!!!
Demà triarem el millor tipus d’hort i podrem fer-lo!!!
Endavant!!! defenseu el vostre projecte d’hort. Veurem a quins acords podem arribar. Estic impacient per veure els vostres texts argumentals i el debat final!!!!
Estic nervios per com será la nostre parcel·la de l’hort. Espero que sigui un debat molt profitós.
I tant que si! Jo estic tranquil·la, però estigues segur que n’aprendre molt.
la ideea de compartir es molt bona!!!
Si Laia, hi estic d’acord. Veurem el resultat.
Cristina és sorprenent el treball que has fet, i m’ha agradat molt com t’ha quedat segueix així.
FELICICITATS!!!!!!!!
Gràcies Pol, intentaré continuar fent la feina tal com m’agrada fer-la i que vosaltres en continueu gaudint.
Cristina aquest bloc es molt diver i m’agrada.
Que bé Yachouba, és molt engrescador rebre els teus comentaris, moltes gràcies.
Hola cristina m’agrada molt el que has fet en el blog, es nota que t’has esforçat molt per fer tot això,
moltes gràcies Cristina!!!!!!!
Si vosaltres en gaudiu és una feina profitosa, endavant!
Hola Cristtina m’ha agradat molt el teu bloc i esta molt bé es veu que has fet un gran esforç
hip hip hurra!!!
Sou vosaltres que feu la feina ben feta, l’hort va endavant per vosaltres i el vostre esforç.